您所在的位置:首页 本科生教育

本科生教育

距离产生美——线上教学感(规建系 王莉莉)

距离产生美——线上教学感

                               规建系  王莉莉

突如其来的疫情打乱了原有的教学计划,同时也为我们开启了新的一扇窗,在这个学期,我承担的课程包括了17建筑的《室内设计》、18建筑、18城规的《建筑设计》等,作为设计类课程,那些在课堂上与学生面对面交流互动、思维碰撞、灵感激发,仿佛难以实现,然而,经过三周的线上教学,让我对其有了新的认识。

感一:博采众长,为我所用

线上教学,对于像我这样以前没有建设网课经验的老师来说,首先面对的问题就是怎么教的问题,涉及到了用什么平台、应该学习哪些软件等等。从准备网课到现在两个月左右的时间里,我首先思考了一下在我的课堂上需要的教学形式。我希望虽然是远距离的教学,但是与学生之间依然能够有一定的互动,能够通过教学激发学生的设计兴趣及灵感。因此我认为应该利用不同网课形式的优点,采用多样的上课形式,来满足一门课的需求。最终通过录播,讲解课程的基础理论知识,录播视频相对直播来说,内容简要明了,这样以便于学生能够反复的观看视频,掌握知识点;直播相对于录播,氛围更好,能够带动学生的积极性,所以在直播课上,主要讲解设计思维、或是结合小的设计作业,先引发学生的设计思考,然后通过直播,讲解学生的作业,并多方向的分析探究方案设计的可能性。

感二:激发兴趣,学生中心

对于学生来说,线上学习,要求学生有一定的自觉性,尤其在设计类课程上。室内设计或建筑设计,都存在着知识面广、牵涉内容多等特点,要通过短短的课堂学习掌握所有知识点,同时能够做出合理的设计,对于学生来说,本就是非常不易的事情,所以在学生如何学的问题上,更多的是引发学生自主学习。那么这次的线上教学,我认为这是一次挑战,但也是一次机遇,通过网络学生可以接触到更多的东西,从而弥补课堂教学的不足。在教学过程中,我将一些优秀的、趣味的、具有代表性的设计展示给学生,从而引发学生的设计情结,让学生能够积极主动地去学习。在教学平台上,也发起一些趣味讨论话题,引发学生的思考及讨论,让学生之间能够相互学习。

感三:创新手段,教学相长

这次的线上教学过程,是教,也是我自身不断学的过程。两个月的时间,学习了比如超星泛雅、雨课堂、钉钉等平台的运用,同时也学习了WPS视频录制功能、Adobe Premiere视频剪辑软件、录屏软件、ipad屏幕分享功能等等。在此期间,进行了各种探索,最终,我认为在录制PPT课件的过程中,可以通过ipad+pencilipad手写笔)+WPS PPT视频录制功能,进行课程的录制,这样可以在录制过程中,将重点部分或延伸内容采用手写笔进行书写,同学们在看视频的过程中,能够看到老师的板书过程,视频录制之后可以通过Adobe Premiere将自己录制的视频做简单的后期剪辑处理,然后再发放给学生。而在直播的过程中,可以通过直播平台的屏幕分享功能分享屏幕,在讲解学生作业及设计思维时,我采用了钉钉的屏幕分享功能,同时采用了ipad投屏功能将平板上的内容展现给学生,这样的形式,可以一边分析讲解,一边书写绘图,学生能够听见、看见整个设计的过程,相对于直接展示最终的设计图,更具吸引力,学生也能够更透彻的理解知识点。

直播方案分析1

直播方案分析2

直播方案分析3

直播方案分析4

直播方案分析5

直播方案分析7

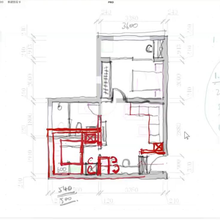
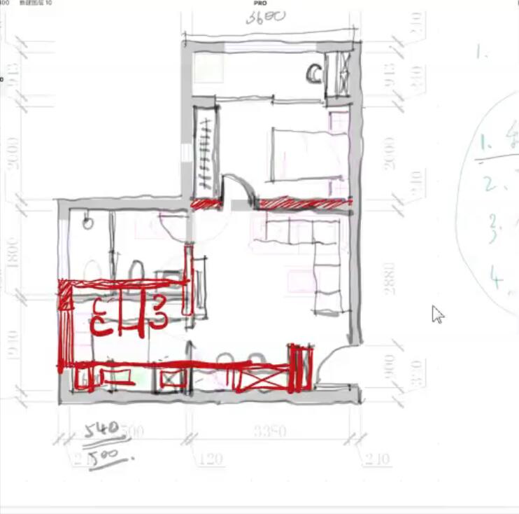
1 直播展示室内布局设计过程

 

话题讨论1

话题讨论2

话题讨论3

2 线上学生对设计话题进行积极探讨

学无止境,教亦无止境。线上教学带来了挑战性,但更多的是机遇和收获。做为规划设计专业年轻教师,唯有不断探索学习,不断反思改进,方能享受教学点滴进步,享受学生真情赞美,乐当良师益友,实现自我价值。